kontextmaschine
Oldest
Tags
About
shrine to a dude, who even knows
Semantic search
26th September 2018
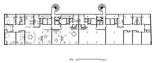
Lúcio Costa - Parque Eduardo Guinle
texnh
:
1954, Rio de Janeiro (BR)
via
#1
© Nelson Kon
← older
newer →